116 Central Park South, #3

  • $2,500,000
116 Central Park South, New York, NY 10019
View Floor Plan
Off Market
116 Central Park South, #3
116 Central Park South, New York, NY 10019
View Floor Plan
  • $2,500,000

Overview

Property ID: S29506
  • Medical Office
  • Property Type
  • 10
  • Exam Rooms
  • 2
  • Bathrooms
  • 3400
  • Sq Ft

Description

Central Park Perfection

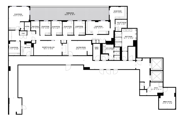
Across from Central Park, this professional office features convenient access to local transportation and is steps from NYC icons like the Time Warner building, the Ritz-Carlton, and the Park Lane Hotel. A destination location, this area attracts international clientele seeking services from world-class doctors. Central Park South is also home to Bergdorf Goodman, couture designer shops, and flagship stores that define the block.

116 Park House has a 24-hour doorman with concierge service, a newly renovated lobby, and a parking garage. The layout offers two large, light-filled corner offices that cap eight to ten exam rooms, streamlining clinic operations. The design is ideal for multiple practitioners needing to support a seamless and efficient patient flow. Each exam room has large windows that overlook the private terrace, creating a bright, personalized and spa-like environment. The office is spacious and open, and is equipped with sinks and plug-and-play dental installation. Condo ownership offers flexible financing and usage with no CO-OP board approval.

LISTING HIGHLIGHTS
6th Avenue/Central Park South
10 Exam Rooms
3 Consultation Rooms
Reception and large back office

Available immediately
Asking $2,500,000
Common Charges approx. $4898/mo
Taxes approx. $6,143/mo

Contact Richard for more details
New York Medical and Dental Space

Reference WEB ID: S29506

  • Address 116 Central Park South
  • City New York
  • State/county New York
  • Zip/Postal Code 10019
  • Area Midtown

Details

  • Property ID: S29506
  • Property Type: Condo
  • Property Size: 3400 Sq Ft
  • Taxes: $6,143/mo
  • Bathrooms: 2
  • Property Status: Off Market
  • Price: $2,500,000
  • CC/Maint: $4,898/mo
  • Exam Rooms: 10

Floor Plans

image

Description:

Mortgage Calculator

Monthly
  • Down Payment
  • Loan Amount
  • Monthly Mortgage Payment
  • Property Tax
  • Home Insurance
  • PMI
  • Monthly HOA Fees
$
%
%
%
$
$
%

Contact Information

View Listings
Richard Naughtin

Inquire About This Property

Compare listings

Compare
Richard Naughtin
  • Richard Naughtin